buan architekten

loading ...
buan architekten - Bueroausbau Emmenbruecke - Situation
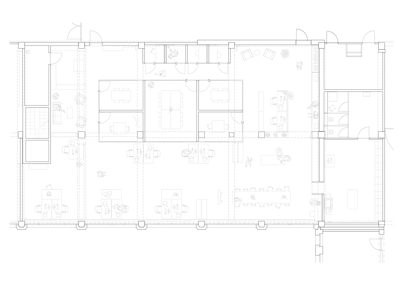
buan architekten - Bueroausbau Emmenbruecke - Grundriss
buan architekten - Bueroausbau Emmenbruecke - Schnitt
buan architekten - Bueroausbau Emmenbruecke - Sitzungszimmer
buan architekten - Bueroausbau Emmenbruecke - Eingang, Empfang und Sitzungszimmer
buan architekten - Bueroausbau Emmenbruecke - Aufputzinstallationen
buan architekten - Bueroausbau Emmenbruecke - Detail
buan architekten - Bueroausbau Emmenbruecke - Waschbecken

info

Büroräume Viscosistadt, Emmenbrücke

Ausbau
Direktauftrag
Realisiert

Die Viscosistadt ist im Wandel und bietet in den alten Industriegebäuden neue Mietflächen für verschiedene Nutzungen.
Der industrielle Bestand ist in den neuen Büroräumen weiterhin sicht- und spürbar.
Im Kontrast dazu stehen weiche Materialien, wie die hölzernen Einbauten und Oberflächen. In Partizipation mit der Auftraggeberin durften wir zeitgemässe und flexible Arbeitsräume realisieren. Sichtbar geführte, technische Installationen, sowie die Details entstanden in Anlehnung an die spannende Vergangenheit des Ortes.

Projektdaten

Auftraggeberin

IG Arbeit

Beschaffung

Direktauftrag

Jahr

2023

Leistungen

Entwurf, Planung, Realisierung, Bauleitung

Raumprogramm

Büroräumlichkeiten, Sitzungszimmer, Nasszelle

Fotos

Philipp Mächler

info