buan architekten

loading ...
buan architekten – Ersatzneubau Einfamilienhaus Kriens – Situation
buan architekten – Ersatzneubau Einfamilienhaus Kriens – Aussenbild 1
buan architekten – Ersatzneubau Einfamilienhaus Kriens – Erdgeschoss mit Umgebung
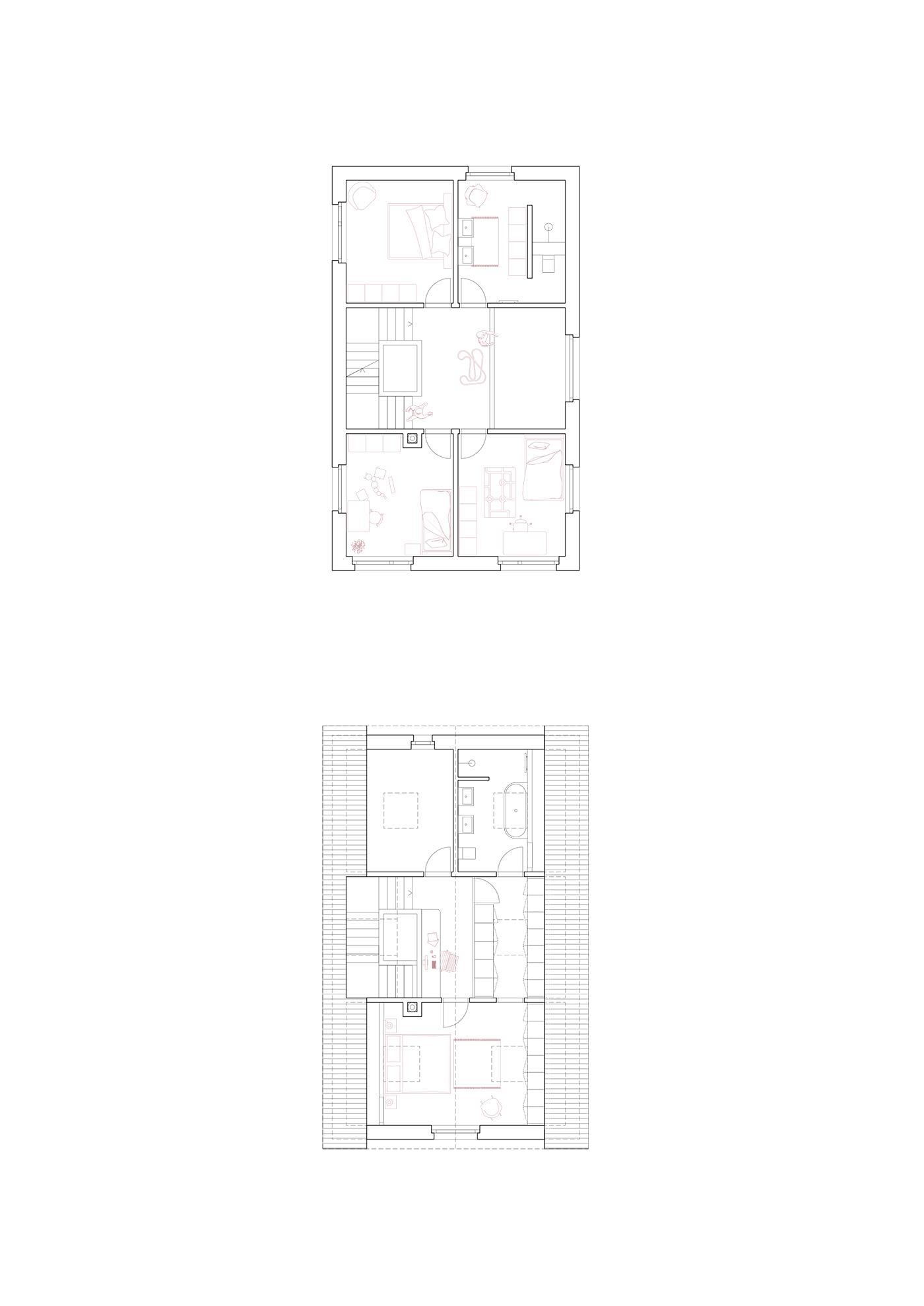
buan architekten – Ersatzneubau Einfamilienhaus Kriens – Grundrisse OG und DG
buan architekten – Ersatzneubau Einfamilienhaus Kriens – Ansicht und Schnitt
buan architekten – Ersatzneubau Einfamilienhaus Kriens – Aussenbild 2
buan architekten – Ersatzneubau Einfamilienhaus Kriens – Hauseingang
buan architekten - Ersatzneubau Einfamilienhaus Kriens - Küche
buan architekten - Ersatzneubau Einfamilienhaus Kriens - Treppe
buan architekten - Ersatzneubau Einfamilienhaus Kriens - Badezimmer

info

Haus Jegerlehnerweg, Kriens

Ersatzneubau
Direktauftrag
Realisiert

Der bestehende Bau auf dem Grundstück soll einem Einfamilienhaus für die neuen Eigentümer weichen. Der Neubau erscheint archetypisch mit einem quartierüblichen steilen Satteldach. Die Traufhöhe orientiert sich am Bestandesbau, so dass sich der Neubau in seiner Volumetrie selbstverständlich in das gebaute Umfeld einfügt.

Das Volumen wird klassisch in eine Sockel-, Mittel- und Dachpartie gegliedert. Die Fassade wird aussen mit einem Strukturputz eingekleidet, wobei sich der Sockel leicht von der übrigen Fassadenfläche abhebt.

Das Haus wird von aussen über wenige Tritte erschlossen. Das Zentrum des Hauses bildet der Essbereich, über welchen die übrigen Räume angebunden sind. Die Überhöhe bildet Sichtbezüge in das Obergeschoss und verleihen den Innenräumen Grosszügigkeit.

Projektdaten

Bauherr

Privat

Beschaffung

Direktauftrag

Jahr

2021 - 2024

Leistungen

Entwurf, Planung, Realisierung inkl. Bauleitung.

Konstruktion

Untergeschoss

Stahlbeton, flach fundiert

Wohngeschosse

Holzelementbauweise

Raumprogramm

5 ½ - Zimmer - Einfamilienhaus

Foto

Philipp Mächler

info