buan architekten

loading ...
buan architekten – Wettbewerb Schulanlage Chilefeld Dagmersellen – Staedtebau
buan architekten – Wettbewerb Schulanlage Chilefeld Dagmersellen – Situation
buan architekten – Wettbewerb Schulanlage Chilefeld Dagmersellen – Modell
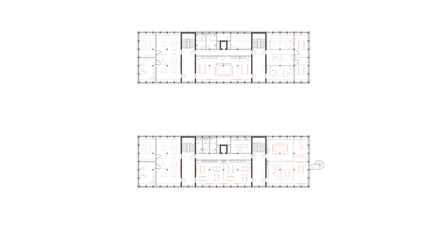
buan architekten – Wettbewerb Schulanlage Chilefeld Dagmersellen – Grundriss Erdgeschoss
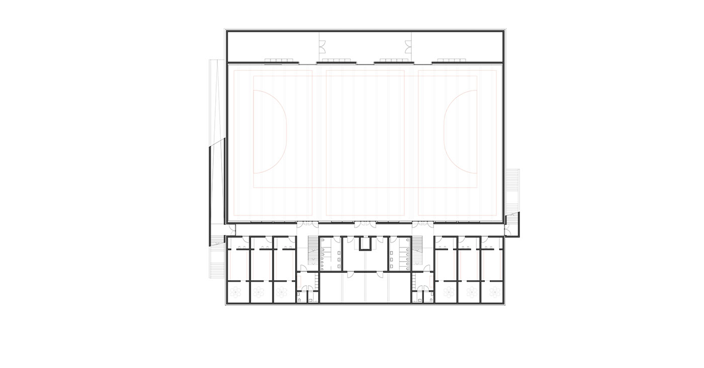
buan architekten – Wettbewerb Schulanlage Chilefeld Dagmersellen – Grundriss Untergeschoss
buan architekten – Wettbewerb Schulanlage Chilefeld Dagmersellen – Grundrisse Obergeschoss
buan architekten – Wettbewerb Schulanlage Chilefeld Dagmersellen – Querschnitt
buan architekten – Wettbewerb Schulanlage Chilefeld Dagmersellen – Fassade Suedost
buan architekten – Wettbewerb Schulanlage Chilefeld Dagmersellen – Fassade Suedwest
buan architekten – Wettbewerb Schulanlage Chilefeld Dagmersellen – Fassade Nordwest
buan architekten – Wettbewerb Schulanlage Chilefeld Dagmersellen – Fassadenschnitt Schulhaus

info

Schulanlage Chilefeld, Dagmersellen

Neubau
offener Projektwettbewerb
2.Rundgang

Die von der Gemeinde Dagmarsellen vorgesehene Entwicklungsstrategie sieht eine neue 3-fach Turnhalle mit Schulräumen und Tagesstrukturen vor.

Das Projekt präsentiert sich als ein zusammenhängender Neubau, bestehend aus einem dreigeschossigen Schulhaustrakt und der eingeschossig in Erscheinung tretenden Sporthalle. Der Ersatzneubau wird so in die gewachsene Situation gesetzt, dass die Hauptadressierung auf Niveau des bestehenden Pausenplatzes erfolgt und somit den wichtigsten und wohl proportionierten Aussenraum im Zentrum der Schulanlage stärkt.

Der Neubau ist tektonisch klar strukturiert und besteht aus einem Sockelbau in Ortbeton und darauf errichtetem Holzbau. Der aus heimischem Holz gefertigte Gebäudekörper steht fest in der Erde verankert. Der gewählte Konstruktionsansatz mit geringen Spannweiten und somit effizientem Materialeinsatz führt zu einer kostenoptimierten Konstruktion.

Projektdaten

Bauherr

Gemeinde Dagmarsellen

Beschaffung

offener Projektwettbewerb

Jahr

2020 - 2022

Landschaftsarch.

extra Landschaftsarchitekten AG, Bern

Raumprogramm

Schule, Sporthalle, Tagesstrukturen

Fotos

Visualisierung

PIXEL GmbH, Luzern

Fotos

AURA Foto Film Verlag GmbH, Emmenbrücke

info