buan architekten

loading ...
buan architekten - Ersatzneubau Schulhaus Zentrum Diessenhofen - Schwarzplan
buan architekten - Ersatzneubau Schulhaus Zentrum Diessenhofen - Situation
buan architekten - Ersatzneubau Schulhaus Zentrum Diessenhofen - Modell-3
buan architekten - Ersatzneubau Schulhaus Zentrum Diessenhofen - Modell-1
buan architekten - Ersatzneubau Schulhaus Zentrum Diessenhofen - Umgebungsgestaltung
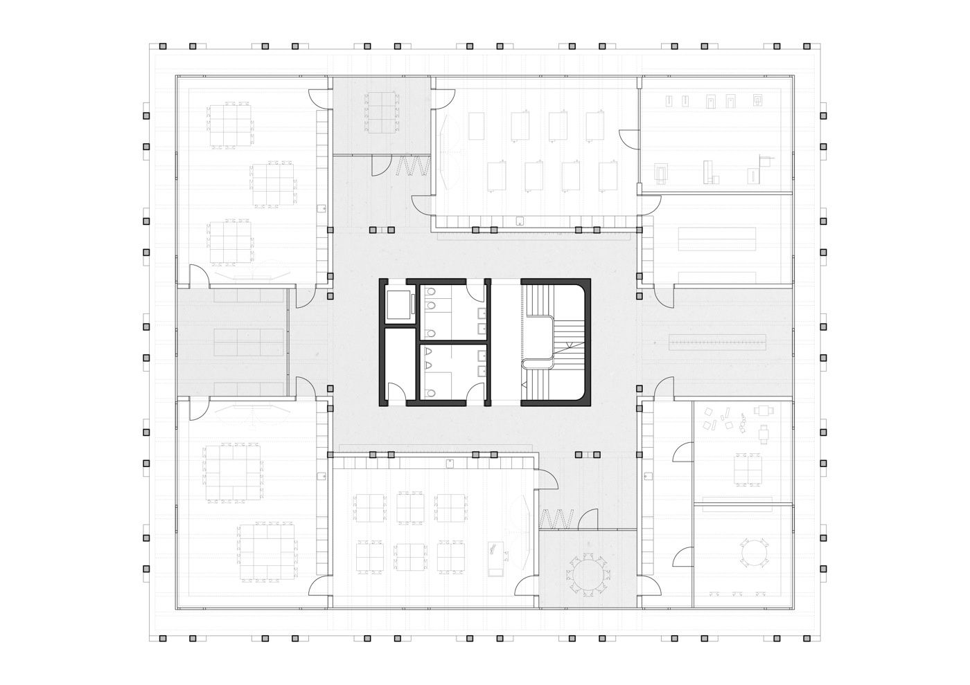
buan architekten - Ersatzneubau Schulhaus Zentrum Diessenhofen - Grundriss Obergeschoss
buan architekten - Ersatzneubau Schulhaus Zentrum Diessenhofen - Grundriss Dachgeschoss
buan architekten - Ersatzneubau Schulhaus Zentrum Diessenhofen - Ansicht Nord
buan architekten - Ersatzneubau Schulhaus Zentrum Diessenhofen - Ansicht West
buan architekten - Ersatzneubau Schulhaus Zentrum Diessenhofen - Laengsschnitt
buan architekten - Ersatzneubau Schulhaus Zentrum Diessenhofen - Strukturmodell-1
buan architekten - Ersatzneubau Schulhaus Zentrum Diessenhofen - Fassadenschnitt

info

Schulhaus Zentrum, Diessenhofen

Neubau
Offener Wettbewerb
juriert

Die in unmittelbarer zum mittelalterlichen Kern von Diessenhofen gelegene Schulanlage mit grosszügigen Aussenanlagen, ist von einem eindrücklichen und den Ort prägenden Gehölzsaum umgeben. Der Neubau besetzt die denkmalgeschützte Schulanlage so, dass eine gemeinsame Adressbildung mit dem Altbau entsteht und dem geschützten Baumbestand Rechnung getragen wird.
Der Neubau erscheint als leichtes in der Grünanlage stehendes Gebäude. Der architektonische Ausdruck des neuen und des alten Schulhauses kontrastieren, ohne sich gegenseitig zu konkurrenzieren.
Die Grundrissstruktur des dreigeschossigen Neubaus entwickelt sich kreisförmig von einem massiven Kern aus Stahlbeton ausgehend, zu einer zunehmend offeneren Raumstruktur mit einer tragenden Riegelwandstruktur zur Fassade hin. Der Leitgedanke bei der Wahl von Konstruktion – Hybridbauweise in Holz und Stahlbeton – führt vom Heimatstil her und verfolgt eine Form der Tektonik, welche die Erscheinung unmittelbar auf den konstruktiven Sachverhalt legt. Das Handwerk und das Material soll spürbar und sichtbar sein, geprägt von den Motiven der Bautradition des angrenzenden Altbaus.

Projektdaten

Bauherr

Volksschulgemeinde Region Diessenhofen VSGDH

Besschaffung

offener Projektwettbewerb

Jahr

2018

Landarch

Appert Zwahlen Partner AG, Cham

Holzbauingenieur

holzprojekt gmbh, Luzern

Raumprogramm

7 Klassenzimmer, 5 Gruppenräume, 3 Werkräume,
Aula, Bibliothek, 4 Heilpädagogikräume, 2 Musikzimmer,
Toiletten, Technik-, Lager-, Serverräume und eine Zivilschutzanalge für 100 Personen.

Fotos

AURA Foto Film Verlag GmbH, Emmenbrücke

info