buan architekten

loading ...
buan architekten – Projektwettbewerb Wilisauer Bote – Situation
buan architekten – Projektwettbewerb Wilisauer Bote – Situationsmodell
buan architekten – Projektwettbewerb Wilisauer Bote – Erdgeschoss mit Umgebung
buan architekten – Projektwettbewerb Wilisauer Bote – Grundrisse UG und 1.OG
buan architekten – Projektwettbewerb Wilisauer Bote – Grundrisse 2.-4.OG
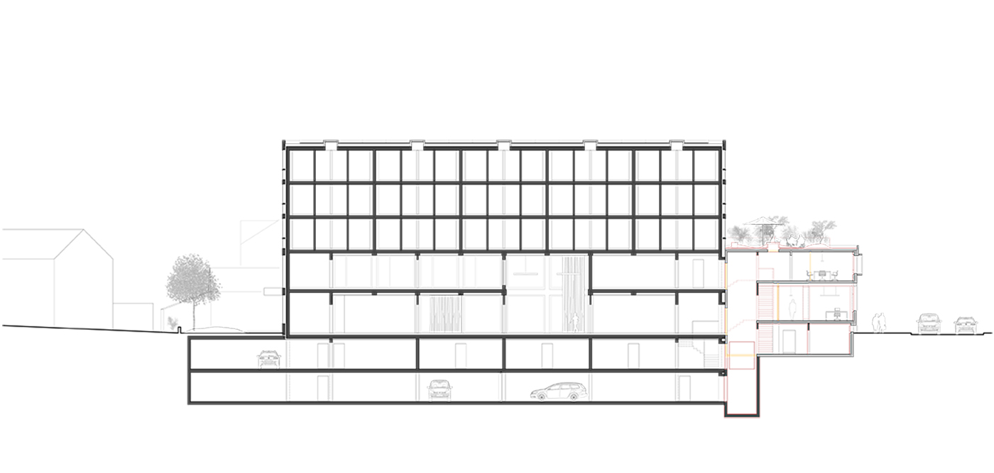
buan architekten – Projektwettbewerb Wilisauer Bote – Querschnitt
buan architekten – Projektwettbewerb Wilisauer Bote – Laengsschnitt
buan architekten – Projektwettbewerb Wilisauer Bote – Ansicht Ostfassade
buan architekten – Projektwettbewerb Wilisauer Bote – Ansicht Suedfassade
buan architekten – Projektwettbewerb Wilisauer Bote – Ansicht Westfassade
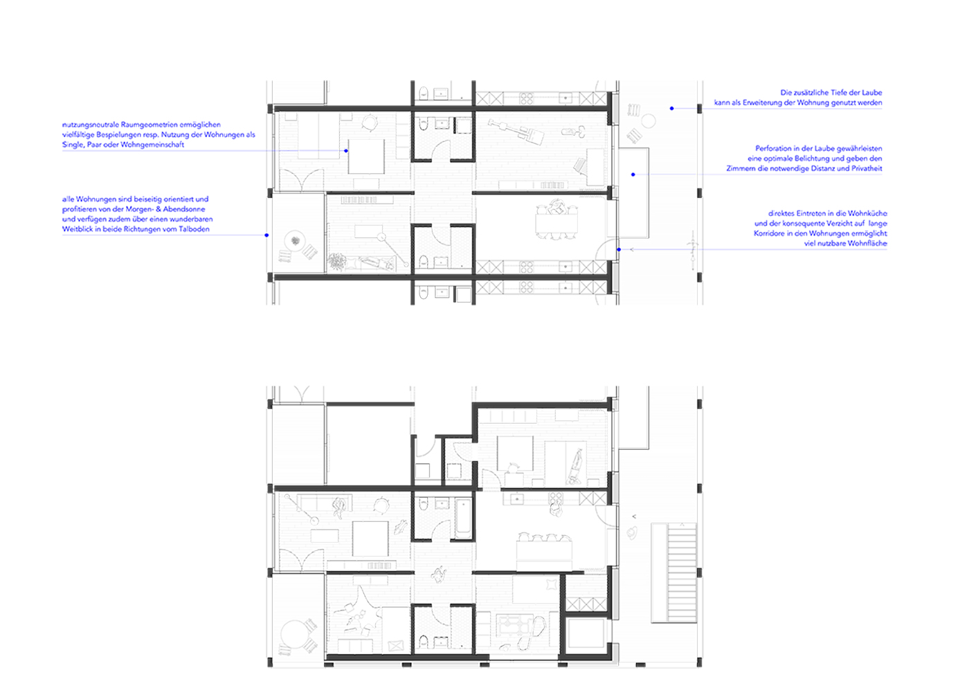
buan architekten – Projektwettbewerb Wilisauer Bote – Grundriss Wohnung Typ 1
buan architekten – Projektwettbewerb Wilisauer Bote – Grundriss Wohnung Typ 2
buan architekten – Projektwettbewerb Wilisauer Bote – Fassadenschnitt

info

Willisauer Bote, Willisau

Um- und Neubau
Projektwettbewerb auf Einladung
2.Rang / 2.Preis

Die Zugänglichkeit und Trennung von dem im Raumprogramm geforderten Wohnungen, Räume der Instrumentensammlung und Büroräume der SWS Medien galt es so zu organisieren, dass die Präsenz der Nutzungen im öffentlichen Raum entsprechend gegeben war.

Der Bestandsbau vom Architekten Carl Kramer mit Baujahr 1962/63 wird erhalten und mit wenigen geringfügigen strukturellen Anpassungen saniert und innen wärmegedämmt. Der bestehende rückwärtige Gebäudekomplex respektive dessen Vorgängerbau war bereits beim Bau der erhaltenswerten Baute mit dem damaligen dahinterliegenden Gewerbebau zusammengebaut.

Daraus resultierte der fünfgeschossige Gebäudekörper, welcher direkt am Bestandsbau andockt. Die Fassadenstruktur vom Neubau und deren Gestaltung nimmt gewisse Elemente vom Bestand auf und tritt so in einen Dialog von Alt und Neu.

Projektdaten

Bauherr

SWS Medien AG, Willisau

Beschaffung

Einstufiger anonymer Projektwettbewerb auf Einladung - 2.Rang

Jahr

2021

Landschaftsarch.

extra Landschaftsarchitekten AG, Bern

Raumprogramm

Museum

Instrumentensammlung der Albert-Köchlin-Stiftung (760m² HNF)

Gewerbe

Büroräumlichkeiten der SWS Medien AG (474m² HNF)

Wohnen

15 Mietwohnungen (2½ - 4½ Zimmer)

info